Caractéristiques d’une section

1 - Introduction

Vous trouverez dans cet articles les principales méthodes pour calculer les caractéristiques d’une section. La plupart des catalogues de fabricants fournissent ces informations pour leurs produits, mais dans le cas d’un profilé reconstitué il faut être capable de les calculer.

2 - Aire

Définition : L’aire d’une section est la somme des ses aires élémentaires.

${Unité : mm^2}$

${A = d_1 \times e_1 + d_2 \times e_2 + d_3 \times e_3}$

Aire

3 - Moment statique

Définition : Le moment statique d’une section par rapport à un axe est égal au produit de l’aire de la section par la distance entre son centre de gravité et l’axe.

${Unité : mm^3}$

${S_{aa’} = A \times d}$

Moment statique d’une section

La distance d sera positive si G est situé d’un coté de l’axe aa’ et négative s’il est de l’autre coté.

Le moment statique d’une section par rapport à un axe est égal à la somme des moments statiques des sections élémentaires par rapport à cet axe.

Voici la position du centre de gravité des sections élémentaires les plus courantes :

Centre de gravité - Rectangle
Centre de gravité - Parallèlogramme
Centre de gravité - Triangle rectangle
Centre de gravité - Disque
Centre de gravité - Demi-disque

Voici une section en I décomposée en trois rectangles

Somme des moments statiques

Pour la section ci dessus, le moment statique par rapport à l’axe xx’ est :

${S_{xx’} = A_1 \times d_1 + A_2 \times d_2 + A_3 \times d_3}$

Dans le cas d’une section creuse, on peut soustraire les parties vides :

Somme des moments statiques - Section creuse

${S_{xx’} = A_1 \times d_1 - A_2 \times d_2}$

Si l’axe traverse la pièce, il faudra considérer chaque coté de l’axe comme des éléments différents.

Somme des moments statiques - Axe traversant

Le moment statique par rapport à l’axe xx’ est donc égal à :

${S_{xx’} = (A_1 \times d_1 + A_2 \times d_2) - (A_3 \times d_3 + A_4 \times d_4)}$

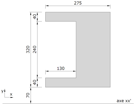
Exemple :

Exemple - Moment statique

Nous voulons calculer le moment statique de cette pièce par rapport à l’axe xx’.
Deux découpages sont possibles.

1ère solution :

Exemple - Moment statique - 1ere solution

${S_{xx’} = A_1 \times d_1 + A_2 \times d_2 + A_3 \times d_3}$

${S_{xx’} = (275 \times 40) \times 370 + ((275 - 130) \times 240) \times 230 + (275 \times 40) \times 90}$

${S_{xx’} = 13\,064\,000\,mm^3}$

2ème solution :

Exemple - Moment statique - 2ème solution

${S_{xx’} = A_1 \times d_1 - A_2 \times d_2}$

${S_{xx’} = (275 \times 320) \times 230 - (240 \times 130) \times 230}$

${S_{xx’} = 13\,064\,000\,mm^3}$

4 - Centre de gravité

Définition : Le centre de gravité d’une section est le point tel que le moment statique de la section par rapport à n’importe quel axe passant par ce point est nul.

Le centre de gravité se trouve sur les axes de symétrie de la section.

Si je reprends la formule du moment statique :

${S_{aa’} = A \times d}$

La distance d représente la distance entre le centre de gravité de la pièce et l’axe.
Si je connais le moment statique d’une section quelconque et la position de l’axe par rapport à la section, je peux retrouver son centre de gravité.

Exemple :
Je cherche le centre de gravité de cette pièce.

Exemple - Centre de gravité 1

Je décompose la section de la façon suivante.

Exemple - Centre de gravité 2

La position de l’axe n’a pas d’importance, il faut le placer de façon à faciliter le calcul. (ce qui n’est pas le cas dans cet exemple)

Je calcule l’aire de la section totale.

${A = (150 \times 30) + (165 \times 30)}$

${A = 9\,450\,mm^3}$

Je calcule le moment statique de la section totale.

${S_{aa’} = A1 \times d1 + A2 \times d2}$

${S_{aa’} = (150 \times 30) \times 200 + (165 \times 30) \times 102,5}$

${S_{aa’} = 1\,407\,375\,mm^3}$

J’en déduis la position du centre de gravité.

${S_{aa’} = A \times d}$

${d = {S_{aa’} \over A}}$

${d = {{1\,407\,375} \over {9\,450}} \approx 148,9\,mm}$

Exemple - Centre de gravité 3
Sous licence : Creative Commons License